Discharge Valve
Nominal Size:40*50/50*80/65*80/80*100*150/150*200
Pressure Rating:PN6/PN10/PN16;CL150(PN20)
Operateing Temperature:-17℃~200℃
Characteristics:Quickly open
Rangeability:/
Seat Leakage Class:ANSI B16.104: IV、V、VI
Body Material:WCB/WCC/LCB/LCC;WC6/WC9;CF8/CF8M;4A/5A etc.
Trim Material:304+ST/304+RTFE etc.
Seal Material:PTFE, Flexible graphite
Product Features
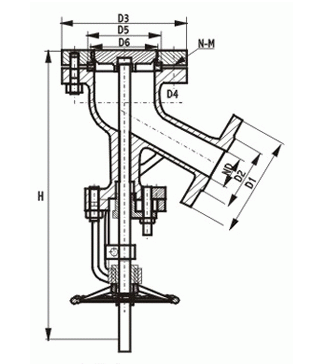
The Discharge Valve is a special single seat regulating valve. The valve body adopts an integrated DC Y-shaped structure, and the valve chamber has no obstructed flow channels. The inner surface is sandblasted, and the valve has no dead corners. Suitable for on-off control of fluids that are prone to precipitation or contain particles in industries such as fine chemicals and pharmaceuticals.
Connection size
| DN | Upper flange | Upper flange | lower flange | Seal seat | ||
| D1 | D2 | D3 | D4 | D5 | D6 | |
| 25 | 115 | 80 | 115 | 85 | - | - |
| 32 | 135 | 100 | 135 | 100 | - | - |
| 40 | 145 | 110 | 145 | 110 | 80 | 60 |
| 50 | 165 | 125 | 160 | 125 | 85 | 70 |
| 65 | 180 | 145 | 180 | 145 | 130 | 85 |
| 80 | 195 | 160 | 195 | 160 | 135 | 95 |
| 100 | 215 | 180 | 215 | 180 | 160 | 130 |
| 125 | 245 | 210 | 245 | 210 | 160 | 140 |
| 150 | 280 | 240 | 280 | 240 | 185 | 165 |
| 200 | 335 | 295 | 335 | 295 | / |
/ |

Contact us








+86-021-67895388
shghfmc@163.com
93862333