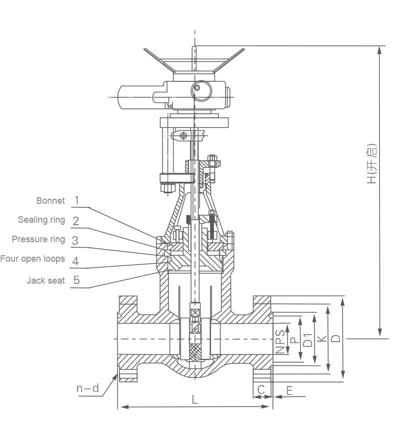
High pressure double acting parallel gate valve
Contour connection dimension
| Pressure rating |
|
|
|
|
Reference weight (kg) | ||||||||||
| NPS | DN | L | H | H1 | L1 | D0 | D | K | n-d | C | D | P | E | ||
| Class1500(25.0Mpa) | 2 | 50 | 371 | 1105 | 929 | 258 | 350 | 215 | 165.1 | 8-26 | 38.1 | 124 | 95.25 | 7.92 | 152 |
| 3 | 80 | 473 | 1195 | 1019 | 258 | 350 | 265 | 203.2 | 8-33 | 47.7 | 168 | 136.53 | 7.92 | 210 | |
| 4 | 100 | 549 | 1259 | 1059 | 258 | 350 | 310 | 241.3 | 8-36 | 54.0 | 194 | 161.93 | 7.92 | 415 | |
| 6 | 150 | 711 | 1742 | 1008* | 290 | 400 | 395 | 317.5 | 12-39 | 82.6 | 248 | 211.14 | 9.53 | 714 | |
| 8 | 200 | 842 | 1967 | 1130* | 290 | 400 | 485 | 393.7 | 12-45 | 92.1 | 318 | 269.88 | 11.13 | 1066 | |
| 10 | 250 | 1000 | 2192 | 1405 | 480 | 650 | 585 | 482.6 | 12-51 | 108.0 | 371 | 323.85 | 11.13 | 1205 | |
| 12 | 300 | 1146 | 2417 | 1530* | 480 | 650 | 675 | 571.5 | 16-55 | 123.9 | 438 | 381.00 | 14.27 | 1555 | |
| Class2500(42.0Mpa) | 2 | 50 | 454 | 1155 | 979 | 258 | 350 | 235 | 171.4 | 8-30 | 50.9 | 133 | 101.60 | 7.92 | 183 |
| 3 | 80 | 584 | 1245 | 1067 | 258 | 350 | 305 | 228.6 | 8-36 | 66.7 | 168 | 127.0 | 9.53 | 252 | |
| 4 | 100 | 683 | 1309 | 1169 | 258 | 350 | 355 | 273.0 | 8-42 | 76.2 | 203 | 157.18 | 11.13 | 498 | |
| 6 | 150 | 927 | 1842 | 1168* | 290 | 400 | 485 | 368.3 | 8-55 | 108.0 | 279 | 228.60 | 12.70 | 928 | |
| 8 | 200 | 1038 | 2067 | 1230* | 290 | 400 | 555 | 438.2 | 12-55 | 127.0 | 340 | 279.40 | 14.27 | 1386 | |
| 10 | 250 | 1292 | 2342 | 1555* | 480 | 650 | 675 | 539.8 | 12-68 | 165.1 | 425 | 342.40 | 17.48 | 1566 | |
| 12 | 300 | 1445 | 2567 | 1680* | 480 | 650 | 760 | 619.1 | 12-74 | 184.2 | 495 | 406.40 | 17.48 | 2022 | |

Contact us























+86-021-67895388
shghfmc@163.com
93862333