CNS Forged Steel Flange Valve
Product model: Z41H
Nominal diameter: DN50~1200mm
Pressure range: PN1.0~16.0MPa
Working temperature: -29℃~+600℃
Main body material: carbon steel, stainless steel, alloy steel
Design and manufacture: GB12234
Structure length: GB12221
Flange size: GB9113 JB79
Pressure temperature: GB9131
Test inspection: GB/T13927, JB/T9092
GB Cast steel gate valve are used to cut or connect the pipe media under nominal pressure between PN1.6-16.0Mpa, working temperatures between-46~600℃. In oil industry, chemical industry, fossil-fired power plants.
The main structure features include
1. sensible products structure, reliable sealing. Excellent performance and good looking.
2. Co hard alloy welded sealing surface, which is wearing resistant, erosion proof, abrasion proof and long-lived.
3. The surface and the adjusting media of the valve shaft are nitrogenized so that it is erosion and abrasion resistant.
4. There is no backward sealing structure in the valve, so the sealing id reliable.
5. The material of the filling and the flange size can be chosen and matched according to the applications and the requirements of the use's. That can satisfies all kinds of working requirements.
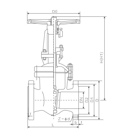
Main external connection dimensions
|
DN(mm) |
L |
D |
D1 |
D2 |
b-f |
z-φd |
Manual |
|
|
H |
D0 |
|||||||
|
Z40/41H/W-10C Z40/41/H/Y-10P/R/PL/RL Z40/41W-10P/R/PL/RL Z40/41Y-10I |
||||||||
|
25 |
127 |
115 |
85 |
65 |
14-2 |
4-φ14 |
257 |
140 |
|
32 |
140 |
135 |
100 |
78 |
16-2 |
4-φ18 |
257 |
160 |
|
40 |
165 |
145 |
110 |
88 |
18-3 |
4-φ18 |
257 |
180 |
|
50 |
180 |
160 |
125 |
102 |
18-3 |
4-φ18 |
289 |
180 |
|
65 |
195 |
180 |
145 |
122 |
18-3 |
4-φ18 |
334 |
180 |
|
80 |
210 |
195 |
160 |
138 |
20-3 |
8-φ18 |
377 |
200 |
|
100 |
230 |
215 |
180 |
158 |
20-3 |
8-φ18 |
433 |
200 |
|
125 |
255 |
245 |
210 |
188 |
22-3 |
8-φ18 |
527 |
240 |
|
150 |
280 |
280 |
240 |
212 |
22-3 |
8-φ22 |
596 |
240 |
|
200 |
330 |
335 |
295 |
268 |
24-3 |
8-φ22 |
772 |
320 |
|
250 |
360 |
390 |
350 |
320 |
26-3 |
12-φ22 |
904 |
320 |
|
300 |
420 |
440 |
400 |
370 |
26-4 |
12-φ22 |
1045 |
400 |
|
350 |
450 |
500 |
460 |
430 |
26-4 |
16-φ22 |
1177 |
400 |
|
400 |
480 |
565 |
515 |
482 |
26-4 |
16-φ26 |
1345 |
500 |
|
450 |
510 |
615 |
565 |
532 |
28-4 |
20-φ26 |
1497 |
500 |
|
500 |
540 |
670 |
620 |
585 |
32-4 |
20-φ26 |
1648 |
720 |
|
600 |
600 |
780 |
725 |
685 |
36-5 |
20-φ30 |
1648 |
720 |
|
700 |
660 |
895 |
840 |
800 |
36-5 |
24-φ30 |
1648 |
720 |
|
800 |
720 |
1010 |
950 |
905 |
38-5 |
24-φ33 |
1648 |
720 |
|
900 |
800 |
1110 |
1050 |
1005 |
38-5 |
28-φ33 |
1648 |
720 |
|
1000 |
850 |
1220 |
1160 |
1115 |
38-5 |
28-φ36 |
1648 |
720 |
|
1200 |
1000 |
1450 |
1380 |
1328 |
44-5 |
32-φ39 |
1648 |
720 |

Contact us











+86-021-67895388
shghfmc@163.com
93862333