Flat gate valve with diversion hole
Product model: Z43W/F
Nominal diameter: DN40~600mm
Nominal pressure: PN1.6~25.0MPa
Operating temperature: -29°C~120°C
Applicable medium: oil, natural gas, water, etc.
Product Structure Features
Flat gate valve with diversion hole has two kinds of structures, soild gate and expandng split gate. On the gate there is a through hole which is the same size as body passage. When the
valve is opened, the diversion hole on the gate constitutes a through conduit to the body bore, easy for medium to flow and pigs to clean,prevent medum depositing which affects
conveying capacity of the pipelines.
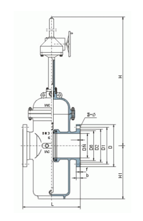
Outline structure diagram
Outline structure diagram
| 1.6MPa | DN | L | D | D1 | D2 | Do | f | b | H | H1 | n-Φd |
| RF | 50 | 178 | 160 | 125 | 100 | 250 | 3 | 16 | 584 | 80 | 4-Φ18 |
| 65 | 190 | 180 | 145 | 120 | 250 | 3 | 18 | 634 | 95 | 4-Φ18 | |
| 80 | 203 | 195 | 160 | 135 | 250 | 3 | 20 | 688 | 100 | 8-Φ18 | |
| 100 | 229 | 215 | 181 | 155 | 300 | 3 | 20 | 863 | 114 | 8-Φ18 | |
| 125 | 254 | 245 | 210 | 185 | 350 | 3 | 22 | 940 | 132 | 8-Φ18 | |
| 150 | 267 | 280 | 240 | 210 | 350 | 3 | 24 | 1030 | 150 | 8-Φ23 | |
| 200 | 292 | 335 | 295 | 265 | 350 | 3 | 26 | 1277 | 168 | 12-Φ23 | |
| 250 | 330 | 405 | 355 | 320 | 400 | 3 | 30 | 1491 | 203 | 12-Φ25 | |
| 300 | 356 | 460 | 410 | 375 | 450 | 4 | 30 | 1701 | 237 | 12-Φ25 | |
| 350 | 381 | 520 | 470 | 435 | 500 | 4 | 34 | 1875 | 265 | 16-Φ30 | |
| 400 | 406 | 580 | 525 | 485 | 305 | 4 | 36 | 2180 | 300 | 16-Φ30 | |
| 450 | 432 | 640 | 585 | 545 | 305 | 4 | 40 | 2440 | 325 | 20-Φ34 | |
| 500 | 457 | 705 | 650 | 608 | 305 | 4 | 44 | 2860 | 360 | 20-Φ41 | |
| 600 | 508 | 840 | 770 | 718 | 305 | 5 | 48 | 3450 | 425 | 20-Φ41 | |
| 700 | 610 | 910 | 840 | 788 | 305 | 5 | 50 | 3960 | 460 | 24-Φ41 | |
| 800 | 660 | 1020 | 950 | 898 | 305 | 5 | 52 | 4550 | 512 | 24-Φ41 | |
| 900 | 711 | 1120 | 1050 | 998 | 250 | 5 | 54 | 5250 | 565 | 28-Φ48 | |
| 1000 | 811 | 1250 | 1170 | 1110 | 250 | 5 | 56 | 5870 | 630 | 28-Φ18 | |
| 2.5MPa | 50 | 178 | 160 | 125 | 100 | 250 | 3 | 20 | 584 | 80 | 4-Φ18 |
| RF | 65 | 190 | 180 | 145 | 120 | 300 | 3 | 22 | 634 | 95 | 8-Φ18 |
| 80 | 203 | 195 | 160 | 135 | 350 | 3 | 22, | 388 | 100 | 8-Φ18 | |
| 100 | 229 | 230 | 190 | 160 | 350 | 3 | 24 | 863 | 114 | 8-Φ23 | |
| 125 | 254 | 270 | 220 | 188, | 350 | 3 | 28 | 940 | 132 | 8-Φ25 | |
| 150 | 267 | 300 | 250 | 218 | 400 | 3 | 30 | 1030 | 150 | 8-Φ25 | |
| 200 | 292 | 360 | 310 | 278 | 450 | 3 | 34 | 1277 | 168 | 12-Φ25 | |
| 250 | 330 | 425 | 370 | 332 | 500 | 3 | 36 | 1491 | 203 | 12-Φ30 | |
| 300 | 356 | 485 | 430 | 390 | 305 | 4 | 40 | 1701 | 237 | 16-Φ30 | |
| 350 | 381 | 550 | 490 | 448 | 305 | 4 | 44 | 1875 | 265 | 16-Φ34 | |
| 400 | 406 | 610 | 550 | 505 | 305 | 4 | 48 | 2180 | 300 | 16-Φ34 | |
| 450 | 432 | 660 | 600 | 555 | 305 | 4 | 50 | 2440 | 325 | 20-Φ34 | |
| 500 | 457 | 730 | 660 | 610 | 305 | 4 | 52 | 2860 | 360 | 20-Φ41 | |
| 600 | 508 | 840 | 770 | 718 | 305 | 5 | 56 | 3450 | 425 | 20-Φ41 | |
| 700 | 610 | 955 | 875 | 815 | 305 | 5 | 60 | 3960 | 460 | 24-Φ48 | |
| 800 | 660 | 1070 | 990 | 930 | 305 | 5 | 64 | 4550 | 512 | 24-Φ48 | |
| 900 | 711 | 1180 | 1090 | 1025 | - | 5 | 66 | 5250 | 595 | 28-Φ54 | |
| 1000 | 811 | 1305 | 1210 | 1140 | - | 5 | 68 | 5870 | 660 | 28-Φ48 |

Contact us







+86-021-67895388
shghfmc@163.com
93862333