Cylindrical fully welded pipeline ball valve
Product model: Q367F
Nominal diameter: DN500~1600mm, NPS20 "~64"
Nominal pressure: PN1.6~2.5Mpa, Class150~300LB
Applicable temperature: -29 ℃≤t≤200 ℃
Drive mode: electric, manual, worm gear drive, gear drive, etc
Design Specification: API 6D, ASMEB 16.34
Pressure-temperature rating: ASME B16.34, API608
Structure length: ASME B16.10, GB12221
Butt weld end form: ASME B16.25, ASME B31.4/31.8
Inspection and Testing: API 598, API 6D, GB13927
Fire resistance test: API 607, API 6FA
Body joint is fully welded that eliminates external leakage through body joint. The valves are specially suitable for long distance buried pipelines with rigorous service conditions, such as city gas, city heating, petrochemical plants and etc.
The main structure features include:
1.Flow resistance is small;
2.Piston seat, fire safe, antistatic design;
3.No limitation on the flow direction;
4.When valve is in full open position, seat surfaces are outside flow stream that always in full contact with gate that can protect seat surfaces, and suitable for pigging pipeline;
5.Spring loaded packing can be chosen;
6.Low emission packing can be chosen according to ISO 15848 requirement;
7.Stem extended design can be chosen;
8.Metal to metal seat design can be chosen;
9.DBB,DIB-1,DIB-2 structure can be chosen;
10.The ball is fixed with a supporting plate and a fixed shaft;
11.Single welding joint or double welding joint design can be chosen.
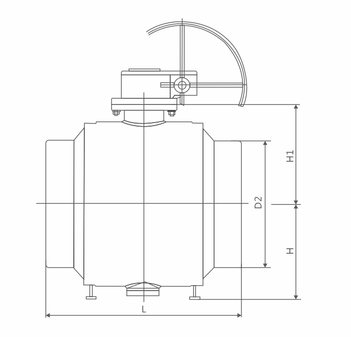
Main connection size
| DN(mm) | Nominal diameter | DH | d | t | L | H1 | H2 | WT(Kg) |
| 600 | 600 | 1016 | 630 | 22 | 1143 | 650 | 860 | 2000 |
| 700 | 700 | 1130 | 720 | 24 | 1346 | 705 | 915 | 3100 |
| 800 | 800 | 1245 | 820 | 28 | 1524 | 770 | 1000 | 4700 |
| 900 | 900 | 1415 | 920 | 30 | 1727 | 855 | 1110 | 5700 |
| 1000 | 980 | 1555 | 1020 | 32 | 1840 | 925 | 1180 | 6600 |
| 1200 | 1166 | 1860 | 1220 | 40 | 2100 | 1075 | 1430 | 11000 |

Contact us
















+86-021-67895388
shghfmc@163.com
93862333