Self-operated pressure regulating valve with conductor
Product overview
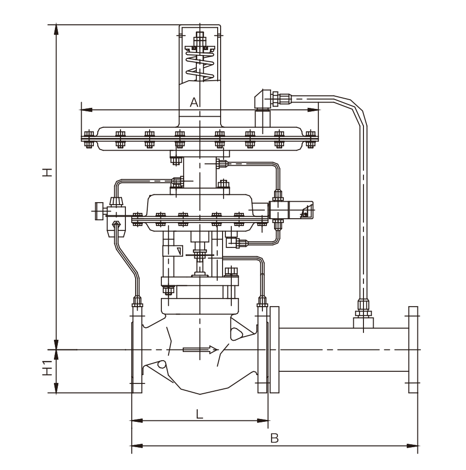
Connect dimension
|
DN |
L |
B |
H1 |
H |
||
|
A=1200cm2 |
A=600cm2 |
A=400cm2 |
||||
|
Pressure regulation range(KPa) |
||||||
|
0.1~0.5 |
0.4~5.0 |
0.5~7 |
||||
|
20 |
150 |
383 |
53 |
605 |
554 |
554 |
|
25 |
160 |
58 |
605 |
554 |
554 |
|
|
32 |
180 |
512 |
70 |
615 |
564 |
564 |
|
40 |
200 |
75 |
640 |
589 |
589 |
|
|
50 |
230 |
603 |
83 |
655 |
604 |
604 |
|
65 |
290 |
862 |
93 |
722 |
671 |
671 |
|
80 |
310 |
100 |
738 |
687 |
687 |
|
|
100 |
350 |
1023 |
110 |
755 |
704 |
704 |
|
125 |
400 |
1380 |
125 |
918 |
867 |
867 |
|
150 |
480 |
143 |
1.25 |
974 |
974 |
|

Contact us





















+86-021-67895388
shghfmc@163.com
93862333