加长杆双放散全焊接球阀
产品型号:MQ61F/361F
公称通径:DN150-1000mm
公称压力:Class 150~400, PN1.6~6.4MPa
适用温度:-29℃~200℃
阀体材质:碳钢、不锈钢
适用介质:水、气、油品
操作方式:手柄、蜗轮
产品概述
埋地式放散全焊接球阀主要用于工程输送管道上,用来作为介质的接通和开关调节。埋地式放散球阀可以直埋于地下,也可直接安装,不用设置地下阀门控制室。埋地式放散球阀的整体结构采用全焊接的工业结构。埋地式放散球阀广泛应用于城市燃气的地下管线,天然气输送管线,调压站等领域。埋地式放散球阀只需在地上用T型手柄、或者传动机构进行转动操作即可,简单方便。
产品特点
1、埋地式放散球阀,阀体采用无缝钢管压制成型阀门的整体结构采用全焊接制造工艺,减少了外泄漏,阀门重量大大减轻,安装更便捷采用弹性垫圈及碳纤维增强密封圈,可经手几万次往复运动无泄漏,保证阀门的使用寿命。
2、埋地式放散球阀,阀门的密封可以在-40℃-200℃的条件下连续使用而不会失效连接方式有对焊、法兰、螺纹连接等形式,开启采用手柄、蜗轮传动、电动等方式。埋地式放散球阀深埋地下,不用设置阀门井。
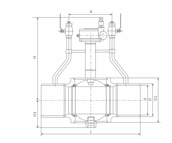
主要外形连接尺寸
|
DN(mm) |
NPS(in) |
d |
D |
D1 |
L |
A |
H2 |
H1 |
|
150 |
6 |
150 |
168 |
273 |
1000 |
400 |
客户指定
|
177 |
|
200 |
8 |
200 |
219 |
356 |
1100 |
400 |
207 |
|
|
250 |
10 |
250 |
273 |
426 |
1100 |
400 |
249 |
|
|
300 |
12 |
300 |
325 |
510 |
1230 |
500 |
298 |
|
|
350 |
14 |
334 |
356 |
560 |
1350 |
500 |
315 |
|
|
400 |
16 |
387 |
406 |
630 |
1480 |
500 |
380 |
|
|
500 |
20 |
489 |
508 |
813 |
1720 |
600 |
487 |
|
|
600 |
24 |
590 |
610 |
990 |
1800 |
650 |
578 |
|
|
700 |
28 |
686 |
711 |
1140 |
1950 |
700 |
660 |
|
|
800 |
32 |
781 |
813 |
1320 |
2150 |
800 |
752 |
|
|
900 |
36 |
876 |
914 |
1480 |
2400 |
800 |
852 |
|
|
1000 |
40 |
978 |
1020 |
1620 |
2600 |
800 |
954 |
随着经济高速发展,市场竞争越来越激烈,用户对阀门产品的要求也越来越多,并且对服务的要求也越来越高;我司销售部门为适应市场发展的要求,专业设立了服务培训组,为服务质量添加完善的工作,我司的售前、售中、售后服务工作经由专业的销售员来完成。
一、冠环阀门售前服务:
做到技术与销售的良好结合,让用户的每一次采购都有较好的服务体验。
①进行采购前产品技术沟通和交流,主动给予建议。
②在进行产品型号选择时考虑是否成本合理工矿效率等问题。
③不能达到工矿要求时,根据客户的特殊要求,安排设计师合理改善。
二、冠环阀门售中服务:
尊重每位用户;给用户一份省心,放心的整体价值服务。
①进行性价比:比价格,比质量,比服务,反思是否有不做到位的地方。
②严格按相关标准和技术要求进行阀门的检测和试验。
③在合作过程中,依照合同,保质保量准时交货,随时保持与用户联系。
④定制期间,相关技术人员可来我司进行产品监造和检验,同时,我司会提供该产品的结构图及详细文件资料,来做监造文件。
⑤对特殊工矿或定做的产品,可协商专业技术员亲临现场指导。
⑥我公司在发货前以电话进行产品型号、口径、数量、件数的确认。
三、冠环阀门售后服务:
好的服务铸就好的企业让客户无后顾之忧。
①按合同要求提供产品的合格证、检验报告、安装说明书等。
②顾客在验收产品过程中,如出现与合同要求不符时,我司接到顾客通知后两小时内给予处理。
③我司提供十二个月的产品质保期,时间从验收合格之日起计算。
④在正确安装和使用下,出现产品质量问题,本公司将负责到底。
冠环阀门包修包换承诺:
①在正常的储运、安装、保养、使用条件下,因产品的质量问题不能正常使用时,提供三保四包: 保质、保量、保及时、包修、包换、包退、包损失。
②在接到质量信息反馈时,将在24小时内提出处理意见,并做到100小时内赶到现场做处理。
③可根据用户需求协商提供备品、备件和安装、调试、维修服务。
为了让您采购到满意的阀门,减少阀门订购过程出现的问题,也是提高我们工作人员的工作效率。我们希望您提供详尽的订货需求,以便我们为您提高更周到的服务!
阀门订货说明:
1、①产品名称与型号,②公称直径,③阀体材质,④公称压力,⑤使用介质,⑥使用温度,⑦驱动方式,⑧是否带附件,以便我们的为您正确选型。
2、如有特殊要求时请在订购产品时注明。
3、若已经由设计单位选定的型号,请按型号直接向我司销售部订购。
4、当使用的场合非常重要或环境比较复杂时,请您尽量提供设计图。
欢迎您访问我们的网站,如有任何疑问,您可以致电给我们,我们一定会尽心尽力为您提供高品质的服务,详细咨询:15000098987。

我要咨询
















021-67895388
shghfmc@163.com
93862333