美标法兰闸阀
产品型号:Z541H/W/Y
公称通径:NPS1/2"~40"
公称压力:Class150~2500Lb
主要材质:ASTM A216 WCB
驱动方式:手轮,齿轮,电动,气动
设计与制造:API 600,BS1414,ASME B16.34
法兰连接:ASME B16.5,ASME B16.47
对焊连接:ASME B16.25
压力-温度等级:ASME B16.34
测试:API 598,BS 6755,ASME B16.34
美标法兰闸阀的启闭件是闸板,闸板的运动方向与流体方向相垂直,闸阀只能作全开和全关,不能作调节和节流。适用于ANSI Class150~2500,工作温度 -29~425℃(碳钢)及 -40~500℃(不锈钢)的名种管路上,用于截断或接通管路中的介质。通过选用不同的材质,可适用于水、蒸汽、油品、硝酸、醋酸、强氧化性介质及尿素等多种介质。
其主要结构特点有
1、产品设计制造按API 600标准,结构合理、密封可靠、性能优良、造型美观。
2、压力≥Class 600密封面堆焊Co基硬质合金,耐磨、耐蚀、抗擦伤性能好、使用寿命长。
3、阀杆经调质及表面氮化处理,有良好的抗腐蚀性及抗擦伤性。
4、压力≥Class 900中腔采用自紧式密封结构,密封性随内压升高而升高,保证了密封的可靠性。
5、阀门设有倒密封结构,密封可靠。
6、零件材质及法兰、对焊端尺寸可根据实际工况或用户要求合理选配,满足各种工程需要。
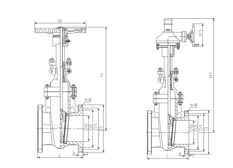
主要外形尺寸
|
磅级 |
NPS (in) |
L |
D |
D1 |
D2 |
b-f |
n-d |
H |
H1 |
W |
W1 |
WT(kg) |
||
|
RF |
RTJ |
BW |
||||||||||||
|
Class 150 |
1/2 |
108 |
119 |
108 |
89 |
60.5 |
35 |
10-1.6 |
4-16 |
195 |
- |
120 |
- |
4 |
|
3/4 |
117 |
130 |
117 |
99 |
69.9 |
43 |
10.5-1.6 |
4-16 |
210 |
- |
120 |
- |
5 |
|
|
1 |
127 |
140 |
127 |
108 |
79.2 |
51 |
11.5-1.6 |
4-16 |
240 |
- |
140 |
- |
7 |
|
|
11/4 |
140 |
153 |
140 |
117 |
88.9 |
64 |
13-1.6 |
4-16 |
300 |
- |
180 |
- |
10 |
|
|
11/2 |
165 |
178 |
165 |
127 |
98.6 |
73 |
14.5-1.6 |
4-16 |
395 |
- |
200 |
- |
14 |
|
|
2 |
216 |
191 |
216 |
152 |
120.5 |
92 |
16-1.6 |
4-18 |
400 |
- |
200 |
- |
19 |
|
|
21/2 |
241 |
203 |
241 |
178 |
139.5 |
105 |
18-1.6 |
4-18 |
435 |
- |
200 |
- |
25 |
|
|
3 |
282 |
216 |
282 |
191 |
152.5 |
127 |
19-1.6 |
4-18 |
515 |
- |
250 |
- |
33 |
|
|
4 |
305 |
241 |
305 |
229 |
190.5 |
157 |
24-1.6 |
8-18 |
595 |
- |
280 |
- |
49 |
|
|
5 |
381 |
267 |
381 |
254 |
216 |
186 |
24-1.6 |
8-22 |
725 |
- |
280 |
- |
62 |
|
|
6 |
403 |
279 |
403 |
279 |
241.5 |
216 |
26-1.6 |
8-22 |
780 |
820 |
300 |
310 |
77 |
|
|
8 |
419 |
305 |
419 |
343 |
298.5 |
270 |
29-1.6 |
8-22 |
975 |
1020 |
350 |
310 |
123 |
|
|
10 |
457 |
343 |
457 |
406 |
362 |
324 |
31-1.6 |
12-26 |
1150 |
1200 |
400 |
310 |
188 |
|
|
12 |
502 |
368 |
502 |
483 |
432 |
381 |
32-1.6 |
12-26 |
1380 |
1430 |
450 |
310 |
288 |
|
|
14 |
572 |
394 |
572 |
533 |
476 |
413 |
35-1.6 |
12-29.5 |
1545 |
1580 |
500 |
310 |
385 |
|
|
16 |
610 |
419 |
610 |
597 |
540 |
470 |
37-1.6 |
16-29.5 |
1733 |
1780 |
500 |
460 |
500 |
|
|
18 |
660 |
445 |
660 |
635 |
578 |
533 |
40-1.6 |
16-32.5 |
1915 |
1990 |
500 |
460 |
601 |
|
|
20 |
711 |
470 |
711 |
699 |
635 |
584 |
43-1.6 |
20-32.5 |
2122 |
2220 |
600 |
460 |
764 |
|
|
24 |
813 |
521 |
813 |
813 |
749.5 |
692 |
48-1.6 |
30-35.5 |
2520 |
2600 |
600 |
460 |
1007 |
|
随着经济高速发展,市场竞争越来越激烈,用户对阀门产品的要求也越来越多,并且对服务的要求也越来越高;我司销售部门为适应市场发展的要求,专业设立了服务培训组,为服务质量添加完善的工作,我司的售前、售中、售后服务工作经由专业的销售员来完成。
一、冠环阀门售前服务:
做到技术与销售的良好结合,让用户的每一次采购都有较好的服务体验。
①进行采购前产品技术沟通和交流,主动给予建议。
②在进行产品型号选择时考虑是否成本合理工矿效率等问题。
③不能达到工矿要求时,根据客户的特殊要求,安排设计师合理改善。
二、冠环阀门售中服务:
尊重每位用户;给用户一份省心,放心的整体价值服务。
①进行性价比:比价格,比质量,比服务,反思是否有不做到位的地方。
②严格按相关标准和技术要求进行阀门的检测和试验。
③在合作过程中,依照合同,保质保量准时交货,随时保持与用户联系。
④定制期间,相关技术人员可来我司进行产品监造和检验,同时,我司会提供该产品的结构图及详细文件资料,来做监造文件。
⑤对特殊工矿或定做的产品,可协商专业技术员亲临现场指导。
⑥我公司在发货前以电话进行产品型号、口径、数量、件数的确认。
三、冠环阀门售后服务:
好的服务铸就好的企业让客户无后顾之忧。
①按合同要求提供产品的合格证、检验报告、安装说明书等。
②顾客在验收产品过程中,如出现与合同要求不符时,我司接到顾客通知后两小时内给予处理。
③我司提供十二个月的产品质保期,时间从验收合格之日起计算。
④在正确安装和使用下,出现产品质量问题,本公司将负责到底。
冠环阀门包修包换承诺:
①在正常的储运、安装、保养、使用条件下,因产品的质量问题不能正常使用时,提供三保四包: 保质、保量、保及时、包修、包换、包退、包损失。
②在接到质量信息反馈时,将在24小时内提出处理意见,并做到100小时内赶到现场做处理。
③可根据用户需求协商提供备品、备件和安装、调试、维修服务。
为了让您采购到满意的阀门,减少阀门订购过程出现的问题,也是提高我们工作人员的工作效率。我们希望您提供详尽的订货需求,以便我们为您提高更周到的服务!
阀门订货说明:
1、①产品名称与型号,②公称直径,③阀体材质,④公称压力,⑤使用介质,⑥使用温度,⑦驱动方式,⑧是否带附件,以便我们的为您正确选型。
2、如有特殊要求时请在订购产品时注明。
3、若已经由设计单位选定的型号,请按型号直接向我司销售部订购。
4、当使用的场合非常重要或环境比较复杂时,请您尽量提供设计图。
欢迎您访问我们的网站,如有任何疑问,您可以致电给我们,我们一定会尽心尽力为您提供高品质的服务,详细咨询:15000098987。

我要咨询











021-67895388
shghfmc@163.com
93862333