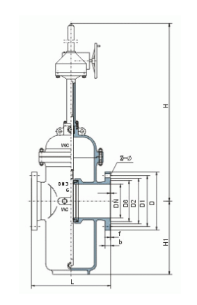
产品结构特征
带导流孔平板闸阀有单闸板和撑开式双闸板两种结构,闸板上有一与阀体通道相同口径的通孔,当阀门开启时,闸板上的导流孔与阀体通道形成一直管道,便于介质流通及管道的通球清扫,防止介质沉积,影响管道的输送能力。
外形结构图
连接尺寸
|
1.6MPa |
DN |
L |
D |
D1 |
D2 |
Do |
f |
b |
H |
H1 |
n-Φd |
|
凸面法兰
RF |
50 |
178 |
160 |
125 |
100 |
250 |
3 |
16 |
584 |
80 |
4-Φ18 |
|
65 |
190 |
180 |
145 |
120 |
250 |
3 |
18 |
634 |
95 |
4-Φ18 |
|
|
80 |
203 |
195 |
160 |
135 |
250 |
3 |
20 |
688 |
100 |
8-Φ18 |
|
|
100 |
229 |
215 |
181 |
155 |
300 |
3 |
20 |
863 |
114 |
8-Φ18 |
|
|
125 |
254 |
245 |
210 |
185 |
350 |
3 |
22 |
940 |
132 |
8-Φ18 |
|
|
150 |
267 |
280 |
240 |
210 |
350 |
3 |
24 |
1030 |
150 |
8-Φ23 |
|
|
200 |
292 |
335 |
295 |
265 |
350 |
3 |
26 |
1277 |
168 |
12-Φ23 |
|
|
250 |
330 |
405 |
355 |
320 |
400 |
3 |
30 |
1491 |
203 |
12-Φ25 |
|
|
300 |
356 |
460 |
410 |
375 |
450 |
4 |
30 |
1701 |
237 |
12-Φ25 |
|
|
350 |
381 |
520 |
470 |
435 |
500 |
4 |
34 |
1875 |
265 |
16-Φ30 |
|
|
400 |
406 |
580 |
525 |
485 |
305 |
4 |
36 |
2180 |
300 |
16-Φ30 |
|
|
450 |
432 |
640 |
585 |
545 |
305 |
4 |
40 |
2440 |
325 |
20-Φ34 |
|
|
500 |
457 |
705 |
650 |
608 |
305 |
4 |
44 |
2860 |
360 |
20-Φ41 |
|
|
600 |
508 |
840 |
770 |
718 |
305 |
5 |
48 |
3450 |
425 |
20-Φ41 |
|
|
700 |
610 |
910 |
840 |
788 |
305 |
5 |
50 |
3960 |
460 |
24-Φ41 |
|
|
800 |
660 |
1020 |
950 |
898 |
305 |
5 |
52 |
4550 |
512 |
24-Φ41 |
|
|
900 |
711 |
1120 |
1050 |
998 |
250 |
5 |
54 |
5250 |
565 |
28-Φ48 |
|
|
1000 |
811 |
1250 |
1170 |
1110 |
250 |
5 |
56 |
5870 |
630 |
28-Φ18 |
|
|
2.5MPa |
50 |
178 |
160 |
125 |
100 |
250 |
3 |
20 |
584 |
80 |
4-Φ18 |
|
凸面法兰
RF |
65 |
190 |
180 |
145 |
120 |
300 |
3 |
22 |
634 |
95 |
8-Φ18 |
|
80 |
203 |
195 |
160 |
135 |
350 |
3 |
22, |
388 |
100 |
8-Φ18 |
|
|
100 |
229 |
230 |
190 |
160 |
350 |
3 |
24 |
863 |
114 |
8-Φ23 |
|
|
125 |
254 |
270 |
220 |
188, |
350 |
3 |
28 |
940 |
132 |
8-Φ25 |
|
|
150 |
267 |
300 |
250 |
218 |
400 |
3 |
30 |
1030 |
150 |
8-Φ25 |
|
|
200 |
292 |
360 |
310 |
278 |
450 |
3 |
34 |
1277 |
168 |
12-Φ25 |
|
|
250 |
330 |
425 |
370 |
332 |
500 |
3 |
36 |
1491 |
203 |
12-Φ30 |
|
|
300 |
356 |
485 |
430 |
390 |
305 |
4 |
40 |
1701 |
237 |
16-Φ30 |
|
|
350 |
381 |
550 |
490 |
448 |
305 |
4 |
44 |
1875 |
265 |
16-Φ34 |
|
|
400 |
406 |
610 |
550 |
505 |
305 |
4 |
48 |
2180 |
300 |
16-Φ34 |
|
|
450 |
432 |
660 |
600 |
555 |
305 |
4 |
50 |
2440 |
325 |
20-Φ34 |
|
|
500 |
457 |
730 |
660 |
610 |
305 |
4 |
52 |
2860 |
360 |
20-Φ41 |
|
|
600 |
508 |
840 |
770 |
718 |
305 |
5 |
56 |
3450 |
425 |
20-Φ41 |
|
|
700 |
610 |
955 |
875 |
815 |
305 |
5 |
60 |
3960 |
460 |
24-Φ48 |
|
|
800 |
660 |
1070 |
990 |
930 |
305 |
5 |
64 |
4550 |
512 |
24-Φ48 |
|
|
900 |
711 |
1180 |
1090 |
1025 |
- |
5 |
66 |
5250 |
595 |
28-Φ54 |
|
|
1000 |
811 |
1305 |
1210 |
1140 |
- |
5 |
68 |
5870 |
660 |
28-Φ48 |
随着经济高速发展,市场竞争越来越激烈,用户对阀门产品的要求也越来越多,并且对服务的要求也越来越高;我司销售部门为适应市场发展的要求,专业设立了服务培训组,为服务质量添加完善的工作,我司的售前、售中、售后服务工作经由专业的销售员来完成。
一、冠环阀门售前服务:
做到技术与销售的良好结合,让用户的每一次采购都有较好的服务体验。
①进行采购前产品技术沟通和交流,主动给予建议。
②在进行产品型号选择时考虑是否成本合理工矿效率等问题。
③不能达到工矿要求时,根据客户的特殊要求,安排设计师合理改善。
二、冠环阀门售中服务:
尊重每位用户;给用户一份省心,放心的整体价值服务。
①进行性价比:比价格,比质量,比服务,反思是否有不做到位的地方。
②严格按相关标准和技术要求进行阀门的检测和试验。
③在合作过程中,依照合同,保质保量准时交货,随时保持与用户联系。
④定制期间,相关技术人员可来我司进行产品监造和检验,同时,我司会提供该产品的结构图及详细文件资料,来做监造文件。
⑤对特殊工矿或定做的产品,可协商专业技术员亲临现场指导。
⑥我公司在发货前以电话进行产品型号、口径、数量、件数的确认。
三、冠环阀门售后服务:
好的服务铸就好的企业让客户无后顾之忧。
①按合同要求提供产品的合格证、检验报告、安装说明书等。
②顾客在验收产品过程中,如出现与合同要求不符时,我司接到顾客通知后两小时内给予处理。
③我司提供十二个月的产品质保期,时间从验收合格之日起计算。
④在正确安装和使用下,出现产品质量问题,本公司将负责到底。
冠环阀门包修包换承诺:
①在正常的储运、安装、保养、使用条件下,因产品的质量问题不能正常使用时,提供三保四包: 保质、保量、保及时、包修、包换、包退、包损失。
②在接到质量信息反馈时,将在24小时内提出处理意见,并做到100小时内赶到现场做处理。
③可根据用户需求协商提供备品、备件和安装、调试、维修服务。
为了让您采购到满意的阀门,减少阀门订购过程出现的问题,也是提高我们工作人员的工作效率。我们希望您提供详尽的订货需求,以便我们为您提高更周到的服务!
阀门订货说明:
1、①产品名称与型号,②公称直径,③阀体材质,④公称压力,⑤使用介质,⑥使用温度,⑦驱动方式,⑧是否带附件,以便我们的为您正确选型。
2、如有特殊要求时请在订购产品时注明。
3、若已经由设计单位选定的型号,请按型号直接向我司销售部订购。
4、当使用的场合非常重要或环境比较复杂时,请您尽量提供设计图。
欢迎您访问我们的网站,如有任何疑问,您可以致电给我们,我们一定会尽心尽力为您提供高品质的服务,详细咨询:15000098987。

我要咨询







021-67895388
shghfmc@163.com
93862333