氧气专用全铜固定球阀
产品型号:YQ347F
公称通径:DN15-200mm
公称压力:PN1.6-4.0MPa
阀体材质:16-4硅黄铜
工作温度:-20~150℃
适用介质:氧气、氮气、空气等
设计标准:GB12237-89
结构长度:GB12221-89
连接法兰:GB/T 9113-2000;JB/T79-94
试验和检验:JB/T 9092-99
产品概述
氧气专用全铜固定球阀属于氧气管道专用阀门,除了具有普通阀门用特点外,又鉴于它采用了优质的铜或不锈钢材质制造,又具有耐腐蚀、阻燃性能好、导电性好、传热性快等优点。设计有防静电,耐火结构,各零部件在装配中严格进行脱脂处理。阀体等部件选用优质硅黄铜并经酸洗、钝化,检查和试验用不含任何油脂的纯净自来水进行高压密封试验,用0.6MPa气体做泄漏试验,阀门无泄漏;经特殊工艺处理,此类球阀不仅操作快速灵便、流阻小、安全可靠,而且使用寿命长(密封副冲刷小)。
产品特点
1、各零部件在装配中严格进行脱脂处理。
2、操作扭矩小,此外密封润滑脂的长期密封,使得操作更加灵活。
3、在阀杆与阀体及阀杆与球体之间设置导电弹簧,具有防火防静电结构。
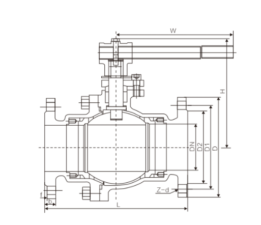
主要连接尺寸及重量(PN1.6MPa)
|
公称通径DN |
15 |
20 |
25 |
32 |
40 |
50 |
65 |
80 |
100 |
125 |
150 |
200 |
|
L |
130 |
140 |
150 |
165 |
180 |
200 |
220 |
250 |
280 |
320 |
360 |
400 |
|
H |
59 |
63 |
75 |
85 |
95 |
107 |
140 |
152 |
178 |
252 |
272 |
342 |
|
W |
130 |
130 |
160 |
180 |
230 |
230 |
400 |
400 |
650 |
1050 |
1050 |
1410 |
|
Wt(㎏) |
2.5 |
3 |
5 |
6 |
7 |
10 |
15 |
19 |
33 |
58 |
93 |
160 |
主要连接尺寸及重量(PN2.5MPa)
|
公称通径DN |
15 |
20 |
25 |
32 |
40 |
50 |
65 |
80 |
100 |
125 |
150 |
200 |
|
L |
130 |
140 |
150 |
165 |
180 |
200 |
220 |
250 |
320 |
400 |
400 |
550 |
|
H |
59 |
63 |
75 |
97 |
107 |
142 |
152 |
178 |
252 |
272 |
342 |
345 |
|
W |
130 |
130 |
160 |
230 |
230 |
400 |
400 |
700 |
1100 |
1100 |
1500 |
1500 |
|
Wt(Kg) |
- | - | - | - | - | - | - | - | - | - | - | - |
主要连接尺寸及重量(PN4.0MPa)
|
公称通径DN |
15 |
20 |
25 |
32 |
40 |
50 |
65 |
80 |
100 |
125 |
150 |
200 |
|
L |
130 |
140 |
150 |
180 |
200 |
220 |
250 |
280 |
320 |
400 |
400 |
550 |
|
H |
59 |
63 |
75 |
97 |
107 |
142 |
152 |
178 |
252 |
272 |
342 |
345 |
|
W |
130 |
130 |
160 |
230 |
230 |
400 |
400 |
700 |
1000 |
1100 |
1500 |
1800 |
|
Wt(Kg) |
- | - | - | - | - | - | - | - | - | - | - | - |
随着经济高速发展,市场竞争越来越激烈,用户对阀门产品的要求也越来越多,并且对服务的要求也越来越高;我司销售部门为适应市场发展的要求,专业设立了服务培训组,为服务质量添加完善的工作,我司的售前、售中、售后服务工作经由专业的销售员来完成。
一、冠环阀门售前服务:
做到技术与销售的良好结合,让用户的每一次采购都有较好的服务体验。
①进行采购前产品技术沟通和交流,主动给予建议。
②在进行产品型号选择时考虑是否成本合理工矿效率等问题。
③不能达到工矿要求时,根据客户的特殊要求,安排设计师合理改善。
二、冠环阀门售中服务:
尊重每位用户;给用户一份省心,放心的整体价值服务。
①进行性价比:比价格,比质量,比服务,反思是否有不做到位的地方。
②严格按相关标准和技术要求进行阀门的检测和试验。
③在合作过程中,依照合同,保质保量准时交货,随时保持与用户联系。
④定制期间,相关技术人员可来我司进行产品监造和检验,同时,我司会提供该产品的结构图及详细文件资料,来做监造文件。
⑤对特殊工矿或定做的产品,可协商专业技术员亲临现场指导。
⑥我公司在发货前以电话进行产品型号、口径、数量、件数的确认。
三、冠环阀门售后服务:
好的服务铸就好的企业让客户无后顾之忧。
①按合同要求提供产品的合格证、检验报告、安装说明书等。
②顾客在验收产品过程中,如出现与合同要求不符时,我司接到顾客通知后两小时内给予处理。
③我司提供十二个月的产品质保期,时间从验收合格之日起计算。
④在正确安装和使用下,出现产品质量问题,本公司将负责到底。
冠环阀门包修包换承诺:
①在正常的储运、安装、保养、使用条件下,因产品的质量问题不能正常使用时,提供三保四包: 保质、保量、保及时、包修、包换、包退、包损失。
②在接到质量信息反馈时,将在24小时内提出处理意见,并做到100小时内赶到现场做处理。
③可根据用户需求协商提供备品、备件和安装、调试、维修服务。
为了让您采购到满意的阀门,减少阀门订购过程出现的问题,也是提高我们工作人员的工作效率。我们希望您提供详尽的订货需求,以便我们为您提高更周到的服务!
阀门订货说明:
1、①产品名称与型号,②公称直径,③阀体材质,④公称压力,⑤使用介质,⑥使用温度,⑦驱动方式,⑧是否带附件,以便我们的为您正确选型。
2、如有特殊要求时请在订购产品时注明。
3、若已经由设计单位选定的型号,请按型号直接向我司销售部订购。
4、当使用的场合非常重要或环境比较复杂时,请您尽量提供设计图。
欢迎您访问我们的网站,如有任何疑问,您可以致电给我们,我们一定会尽心尽力为您提供高品质的服务,详细咨询:15000098987。

我要咨询








021-67895388
shghfmc@163.com
93862333