三片式球阀
产品型号:Q11F
公称通径:DN10~100mm
公称压力:PN1.6~6.4MPa
适用温度:-20 ~ +80℃
连接方式:对焊,丝扣
主要材质:碳钢(C)、不锈钢(P4、P6)
设计与制造:GB12237-89、API608、API 6D、JPI 7S-48、BS5351、DIN3357
结构长度:GB12221-89、ANSI B16.10、JIS B2002、NF E29-305、DIN3202
检验主试验:JB/T 9092、API 598
三片式球阀适用于工作温度-29~180℃(密封圈为增强聚四氟乙烯)或-29~300℃(密封圈为对位聚苯)的各种管路上,用于截断或接通管路中的介质。选用不同的材质,可分别适用于水、蒸汽、油品、硝酸、醋酸等多种介质。
产品特点
三片式球阀分为整体式(一片式)、两段式及三段式。结构合理、造型美观。阀座采用弹性密封结构,密封可靠,启闭轻松。阀杆采用有倒密封的下装式结构,阀腔异常升压时,阀杆不会被冲出。二片式、三片式球阀连接形式另有对焊(BW)承插焊(SW),并均可带国际标准ISO支架平台和锁定装置。可设置90°开关定位机构,根据需要加锁以防止误操作,驱动方式:手动、电动、气动。
主要零件材质
| 零件名称 | 材质 | |
| 不锈钢 | 碳钢 | |
| 阀体 | 不锈钢CF8M | 碳钢WCB |
| 密封圈 | 聚四氟乙烯PTFE | 聚四氟乙烯PTFE |
| 阀盖 | 不锈钢CF8M | 碳钢WCB |
| 球体 | 不锈钢SS316 | 不锈钢SS304 |
| 阀杆 | 不锈钢SS316 | 不锈钢SS316 |
| 螺母 | 不锈钢SS304 | FCD45 |
| 垫圈 | 不锈钢SS304 | FCD45 |
| 手柄套 | 塑料 | 塑料 |
| 手柄 | 不锈钢SS304 | 不锈钢SS304 |
| 阀杆螺母 | 不锈钢SS304 | B7 |
| 垫圈 | 不锈钢SS304 | 不锈钢SS304 |
| 填料压盖螺母 | 不锈钢SS304 | FCD45 |
| 填料 | 聚四氟乙烯PTFE | 聚四氟乙烯PTFE |
| 止推垫圈 | 聚四氟乙烯PTFE | 聚四氟乙烯PTFE |
| 填料 | 聚四氟乙烯PTFE | 聚四氟乙烯PTFE |
| 螺栓 | 不锈钢SS304 | B8 |
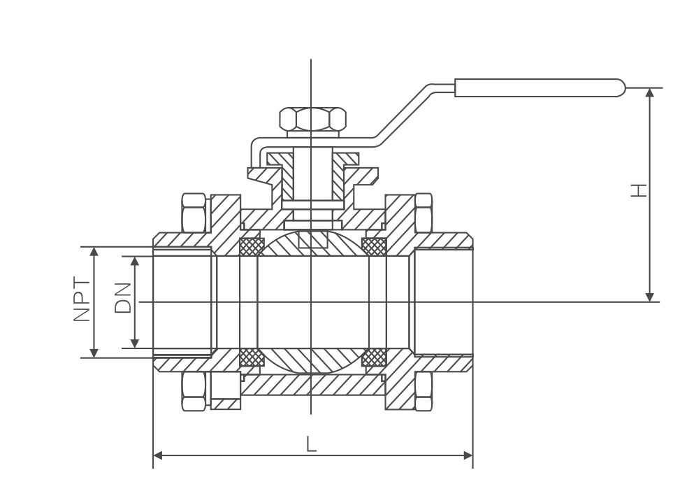
|
DN |
15 |
20 |
25 |
32 |
40 |
50 |
|
NPT |
1/2″ |
3/4″ |
1″ |
1-1/4″ |
1-1/2″ |
2″ |
|
L |
69.5 |
81 |
88 |
107 |
118 |
139 |
|
H |
75 |
93 |
101 |
117 |
129 |
148 |
随着经济高速发展,市场竞争越来越激烈,用户对阀门产品的要求也越来越多,并且对服务的要求也越来越高;我司销售部门为适应市场发展的要求,专业设立了服务培训组,为服务质量添加完善的工作,我司的售前、售中、售后服务工作经由专业的销售员来完成。
一、冠环阀门售前服务:
做到技术与销售的良好结合,让用户的每一次采购都有较好的服务体验。
①进行采购前产品技术沟通和交流,主动给予建议。
②在进行产品型号选择时考虑是否成本合理工矿效率等问题。
③不能达到工矿要求时,根据客户的特殊要求,安排设计师合理改善。
二、冠环阀门售中服务:
尊重每位用户;给用户一份省心,放心的整体价值服务。
①进行性价比:比价格,比质量,比服务,反思是否有不做到位的地方。
②严格按相关标准和技术要求进行阀门的检测和试验。
③在合作过程中,依照合同,保质保量准时交货,随时保持与用户联系。
④定制期间,相关技术人员可来我司进行产品监造和检验,同时,我司会提供该产品的结构图及详细文件资料,来做监造文件。
⑤对特殊工矿或定做的产品,可协商专业技术员亲临现场指导。
⑥我公司在发货前以电话进行产品型号、口径、数量、件数的确认。
三、冠环阀门售后服务:
好的服务铸就好的企业让客户无后顾之忧。
①按合同要求提供产品的合格证、检验报告、安装说明书等。
②顾客在验收产品过程中,如出现与合同要求不符时,我司接到顾客通知后两小时内给予处理。
③我司提供十二个月的产品质保期,时间从验收合格之日起计算。
④在正确安装和使用下,出现产品质量问题,本公司将负责到底。
冠环阀门包修包换承诺:
①在正常的储运、安装、保养、使用条件下,因产品的质量问题不能正常使用时,提供三保四包: 保质、保量、保及时、包修、包换、包退、包损失。
②在接到质量信息反馈时,将在24小时内提出处理意见,并做到100小时内赶到现场做处理。
③可根据用户需求协商提供备品、备件和安装、调试、维修服务。
为了让您采购到满意的阀门,减少阀门订购过程出现的问题,也是提高我们工作人员的工作效率。我们希望您提供详尽的订货需求,以便我们为您提高更周到的服务!
阀门订货说明:
1、①产品名称与型号,②公称直径,③阀体材质,④公称压力,⑤使用介质,⑥使用温度,⑦驱动方式,⑧是否带附件,以便我们的为您正确选型。
2、如有特殊要求时请在订购产品时注明。
3、若已经由设计单位选定的型号,请按型号直接向我司销售部订购。
4、当使用的场合非常重要或环境比较复杂时,请您尽量提供设计图。
欢迎您访问我们的网站,如有任何疑问,您可以致电给我们,我们一定会尽心尽力为您提供高品质的服务,详细咨询:15000098987。

我要咨询


















021-67895388
shghfmc@163.com
93862333