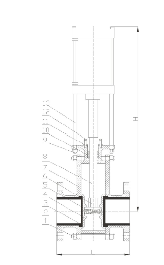
气动陶瓷双闸板阀
产品型号:Z644TC
公称通径:DN40-350mm
公称压力:1.0-1.6MPa
气动执行器工作压力:0.4~0.6MPa
适用温度:≤200℃(另有耐高温型**高可耐400℃高温)
适用介质:粉煤灰、干粉尘、气体、水等
适用范围:火力发电厂干灰系统、仓泵出料输送。化工、冶金、造纸、制药等行业中散状物料输送系统。
产品概述
气动陶瓷双闸板阀又称气动陶瓷平行双闸板闸阀或干灰阀,是陶瓷闸阀的一种。故其结构与工作原理与陶瓷闸阀一致,其启闭体(阀板)由阀杆带动阀座密封面作升降运动,可接通或截断流体的通道。当阀门部分开启时,在闸板背面产生涡流,易引起闸板的侵蚀和震动,也易损坏阀座密封面,修理困难,通常适用于不需要经常启闭,而且保持闸板全开或全闭的工况。通过设置在阀盖内侧的陶瓷轨道条以及设置在三通阀芯内的助力弹簧,能够有效地使左、右闸板紧贴在陶瓷轨道条上运动时,不产生任何泄漏,从而保证阀体的正常运行,本实用新型结构简单、安装使用方便。
陶瓷双闸板阀主要用于干粉物料的进、放料及输送管道上,作截止和接通介质通道用,做仓泵出料阀、平衡阀、排气阀、排堵阀,也可用作管路切换阀和灰库卸灰阀,具有密封性能好、启动负荷小、卡灰及积灰现象少、耐磨性强、使用寿命长的特点。陶瓷双闸板阀通常采用法兰连接方式,可分为手动和电动两种驱动方式。具体来说此系列产品使用范围为:1.电厂除灰—干除灰系统;2.选矿厂—干矿粉状物料的选择、输送;3.水泥行业—干粉料输送、放料;4.面粉厂—面粉输送管道。5.其它粉末或微小固体颗粒等高磨损介质的输送,因这些工矿介质中常有硬质颗粒和纤维性的污垢等物体,该阀在管道系统中作为启闭装置,能起到极好的作用。
产品特点
1. 该阀门具有先进的设计理念,其有普通阀门不可比拟的特性,作为流体控制系统,有效地解决了长期以来无法解决的因杂物而造成的闸阀密封面损坏而泄漏的现象。
2. 该阀门采用了弹簧自密封结构及特殊型的密封面,使密封副不论在任何位置始终保持吻合,能彻底刮除密封面上粘结的残留污垢(如泥沙、焊渣等附着物),密封面不受到任何损坏,由于密封面堆焊了高硬度的耐腐蚀的合金材料,经诸多厂家使用后证明该结构不但能刮尽密封面的各种污垢,而且能把ф5mm的不锈钢焊条切断,而密封面无丝毫损坏,工作正常。
3. 由于阀门中弹簧自密封结构能自动补偿密封面正常的磨损,一方面由于密封性极强泄漏率为零,另一方面大大提高了阀门的工作使用寿命,为企业节约了成本。
4. 该阀门采用了楔式滚柱式开关机构,能轻便地开关阀门,并能补尝密封面少量泄漏的预警装置。如果阀门出现微小泄漏,只要关紧手轮就能使阀门保持零泄漏,而普通阀门不具备这项技能。
5. 由于采用了特殊开关机构,防止了普通闸门因温度变化很大,使闸板卡死,而打不开的现象。
6. 该阀在底部设有自动排污系统,始终保持阀体内腔清洁,无残留物。
7. 阀体内设有防尘机构,保证阀门内腔不会有污物浸入,而使内部机构失灵
随着经济高速发展,市场竞争越来越激烈,用户对阀门产品的要求也越来越多,并且对服务的要求也越来越高;我司销售部门为适应市场发展的要求,专业设立了服务培训组,为服务质量添加完善的工作,我司的售前、售中、售后服务工作经由专业的销售员来完成。
一、冠环阀门售前服务:
做到技术与销售的良好结合,让用户的每一次采购都有较好的服务体验。
①进行采购前产品技术沟通和交流,主动给予建议。
②在进行产品型号选择时考虑是否成本合理工矿效率等问题。
③不能达到工矿要求时,根据客户的特殊要求,安排设计师合理改善。
二、冠环阀门售中服务:
尊重每位用户;给用户一份省心,放心的整体价值服务。
①进行性价比:比价格,比质量,比服务,反思是否有不做到位的地方。
②严格按相关标准和技术要求进行阀门的检测和试验。
③在合作过程中,依照合同,保质保量准时交货,随时保持与用户联系。
④定制期间,相关技术人员可来我司进行产品监造和检验,同时,我司会提供该产品的结构图及详细文件资料,来做监造文件。
⑤对特殊工矿或定做的产品,可协商专业技术员亲临现场指导。
⑥我公司在发货前以电话进行产品型号、口径、数量、件数的确认。
三、冠环阀门售后服务:
好的服务铸就好的企业让客户无后顾之忧。
①按合同要求提供产品的合格证、检验报告、安装说明书等。
②顾客在验收产品过程中,如出现与合同要求不符时,我司接到顾客通知后两小时内给予处理。
③我司提供十二个月的产品质保期,时间从验收合格之日起计算。
④在正确安装和使用下,出现产品质量问题,本公司将负责到底。
冠环阀门包修包换承诺:
①在正常的储运、安装、保养、使用条件下,因产品的质量问题不能正常使用时,提供三保四包: 保质、保量、保及时、包修、包换、包退、包损失。
②在接到质量信息反馈时,将在24小时内提出处理意见,并做到100小时内赶到现场做处理。
③可根据用户需求协商提供备品、备件和安装、调试、维修服务。
为了让您采购到满意的阀门,减少阀门订购过程出现的问题,也是提高我们工作人员的工作效率。我们希望您提供详尽的订货需求,以便我们为您提高更周到的服务!
阀门订货说明:
1、①产品名称与型号,②公称直径,③阀体材质,④公称压力,⑤使用介质,⑥使用温度,⑦驱动方式,⑧是否带附件,以便我们的为您正确选型。
2、如有特殊要求时请在订购产品时注明。
3、若已经由设计单位选定的型号,请按型号直接向我司销售部订购。
4、当使用的场合非常重要或环境比较复杂时,请您尽量提供设计图。
欢迎您访问我们的网站,如有任何疑问,您可以致电给我们,我们一定会尽心尽力为您提供高品质的服务,详细咨询:15000098987。

我要咨询











021-67895388
shghfmc@163.com
93862333