衬氟旋启式止回阀
产品型号:H44F46
公称通径:DN15~DN500
结构形式:旋启式
公称压力:PN0.6MPa~1.0MPa~1.6MPa
连接方式:法兰
适用温度:-50ºC~+150ºC
驱动方式:介质推动
连接材质:铸铁、铸钢、不锈钢
适用介质:王水、硫酸、盐酸、氢氟酸等
产品概述
H44F46衬氟旋启式止回阀适用在-50℃~150℃的各种浓度的王水、硫酸、盐酸、氢氟酸和各种有机酸、强酸、强氧化剂,FEP还适用于各种浓度的强碱有机溶剂以及其它腐蚀性气体、液体介质的管路上使用。其主要作用是防止介质倒流。
标准规范
设计制造标准:GB/T 12236
结构长度标准:GB/T 12221-2005
连接法兰标准:GB/T 9113、HG20592-97
压力温度等级:GB/T 12224-2005
试验检验标准:GB/T 13927-2008
主要零部件的材料
| 序号 | 零件名称 | 灰铸铁 | 铸钢 | 不锈钢 | 超低碳不锈钢 | ||
| Z | C | P | R | PL | RL | ||
| 1 | 阀体、阀盖 | HT250 | WCB | CF8 | CF8M | CF3 | CF3M |
| 2 | 衬里层/阀盖 | 衬硬橡胶(NR)FEP(F46)PCTFE(F3)PFA(可溶性聚四氟乙烯) | |||||
| 3 | 轴、阀瓣(板) | 1 Cr13/35WCB 1Cr18Ni9/CF8 00Cr17Ni14Mo2/CF3M | |||||
| 4 | 螺栓 | 35 | 35 | 1Cr17Ni2 | 1Cr17Ni2 | 1Cr18Ni9Ti | 1Cr18Ni9Ti |
| 5 | 螺母 | 45 | 45 | 0Cr18Ni9 | 0Cr18Ni9 | 0Cr18Ni9 | 0Cr18Ni9 |
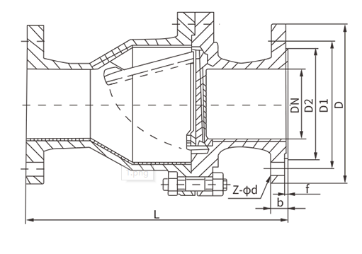
| 公称通径 | 标准值 | 参考值 | |||||||||
| DN(mm) | NPS(inch) | L | D | D1 | D2 | f | b | Z-Φd | B | H | W(kg) |
| 15 | 1/2 | 130 | 80 | 55 | 40 | 2 | 12 | 4-Φ12 | 105 | 55 | 4 |
| 20 | 3/4 | 150 | 90 | 65 | 50 | 2 | 14 | 4-Φ12 | 115 | 58 | 5 |
| 25 | 1 | 160 | 100 | 75 | 60 | 2 | 14 | 4-Φ12 | 128 | 60 | 6 |
| 32 | 1 1/4 | 180 | 120 | 90 | 70 | 2 | 16 | 4-Φ14 | 145 | 75 | 7 |
| 40 | 1 1/2 | 200 | 130 | 100 | 80 | 3 | 16 | 4-Φ14 | 160 | 82 | 8 |
| 50 | 2 | 230 | 140 | 110 | 90 | 3 | 16 | 4-Φ14 | 178 | 95 | 10 |
| 65 | 2 1/2 | 290 | 160 | 130 | 110 | 3 | 16 | 4-Φ14 | 205 | 105 | 20 |
| 80 | 3 | 310 | 185 | 150 | 125 | 3 | 18 | 4-Φ18 | 230 | 120 | 25 |
| 100 | 4 | 350 | 205 | 170 | 145 | 3 | 18 | 4-Φ18 | 255 | 135 | 30 |
| 125 | 5 | 400 | 235 | 200 | 175 | 3 | 20 | 8-Φ18 | 305 | 158 | 50 |
| 150 | 6 | 480 | 260 | 225 | 200 | 3 | 20 | 8-Φ18 | 345 | 180 | 65 |
| 200 | 8 | 495 | 315 | 280 | 255 | 3 | 22 | 8-Φ18 | 415 | 215 | 137 |
| 250 | 10 | 622 | 370 | 335 | 310 | 3 | 24 | 12-Φ18 | 490 | 240 | 150 |
| 300 | 12 | 698 | 435 | 395 | 362 | 4 | 24 | 12-Φ23 | 540 | 265 | 185 |
| 350 | 14 | 787 | 485 | 445 | 412 | 4 | 26 | 12-Φ23 | 585 | 300 | 215 |
| 400 | 16 | 914 | 535 | 495 | 462 | 4 | 28 | 16-Φ23 | 625 | 360 | 244 |
| 450 | 18 | 978 | 590 | 550 | 518 | 4 | 28 | 16-Φ23 | 680 | 385 | 276 |
| 500 | 20 | 978 | 640 | 600 | 568 | 4 | 30 | 16-Φ23 | 740 | 415 | 315 |
随着经济高速发展,市场竞争越来越激烈,用户对阀门产品的要求也越来越多,并且对服务的要求也越来越高;我司销售部门为适应市场发展的要求,专业设立了服务培训组,为服务质量添加完善的工作,我司的售前、售中、售后服务工作经由专业的销售员来完成。
一、冠环阀门售前服务:
做到技术与销售的良好结合,让用户的每一次采购都有较好的服务体验。
①进行采购前产品技术沟通和交流,主动给予建议。
②在进行产品型号选择时考虑是否成本合理工矿效率等问题。
③不能达到工矿要求时,根据客户的特殊要求,安排设计师合理改善。
二、冠环阀门售中服务:
尊重每位用户;给用户一份省心,放心的整体价值服务。
①进行性价比:比价格,比质量,比服务,反思是否有不做到位的地方。
②严格按相关标准和技术要求进行阀门的检测和试验。
③在合作过程中,依照合同,保质保量准时交货,随时保持与用户联系。
④定制期间,相关技术人员可来我司进行产品监造和检验,同时,我司会提供该产品的结构图及详细文件资料,来做监造文件。
⑤对特殊工矿或定做的产品,可协商专业技术员亲临现场指导。
⑥我公司在发货前以电话进行产品型号、口径、数量、件数的确认。
三、冠环阀门售后服务:
好的服务铸就好的企业让客户无后顾之忧。
①按合同要求提供产品的合格证、检验报告、安装说明书等。
②顾客在验收产品过程中,如出现与合同要求不符时,我司接到顾客通知后两小时内给予处理。
③我司提供十二个月的产品质保期,时间从验收合格之日起计算。
④在正确安装和使用下,出现产品质量问题,本公司将负责到底。
冠环阀门包修包换承诺:
①在正常的储运、安装、保养、使用条件下,因产品的质量问题不能正常使用时,提供三保四包: 保质、保量、保及时、包修、包换、包退、包损失。
②在接到质量信息反馈时,将在24小时内提出处理意见,并做到100小时内赶到现场做处理。
③可根据用户需求协商提供备品、备件和安装、调试、维修服务。
为了让您采购到满意的阀门,减少阀门订购过程出现的问题,也是提高我们工作人员的工作效率。我们希望您提供详尽的订货需求,以便我们为您提高更周到的服务!
阀门订货说明:
1、①产品名称与型号,②公称直径,③阀体材质,④公称压力,⑤使用介质,⑥使用温度,⑦驱动方式,⑧是否带附件,以便我们的为您正确选型。
2、如有特殊要求时请在订购产品时注明。
3、若已经由设计单位选定的型号,请按型号直接向我司销售部订购。
4、当使用的场合非常重要或环境比较复杂时,请您尽量提供设计图。
欢迎您访问我们的网站,如有任何疑问,您可以致电给我们,我们一定会尽心尽力为您提供高品质的服务,详细咨询:15000098987。

我要咨询



























021-67895388
shghfmc@163.com
93862333