蜗轮卡套旋塞阀
产品型号:X343F
公称通径:NPS1/2"~56"
公称压力:Class150~2500Lb
工作温度:-29~340℃
主体材质:碳钢、不锈钢、超低碳不锈钢、双相不锈钢、耐热抗氧化钢、低温钢等
驱动方式:手动、蜗轮
设计标准:API 6D、API599
结构长度:ASME B16.10
连接标准:ASME B16.5
压力试验:API 598
压力-温度等级:ASME B16.34
产品概述
美标蜗轮式旋塞阀工作温度为-29-180℃的石油、化工、制药、化肥、电力行业等各种工况的管路上,切断或接通管路介质。
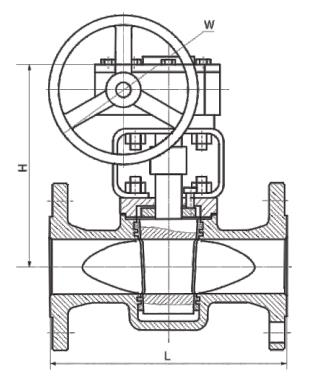
主要外形尺寸
| 磅级 | NPS(in) | d | L | D | D1 | D2 | b | z-φd | f | Lo | H | X | W |
| 150 | 1/2 | 13 | 108 | 89 | 60 | 35 | - | 4-16 | 2 | 149 | 121 | - | - |
| 3/4 | 19 | 117 | 98 | 70 | 43 | - | 4-16 | 2 | 149 | 121 | - | - | |
| 1 | 25 | 140 | 128 | 79 | 51 | 11 | 4-16 | 2 | 181 | 124 | - | - | |
| 1-1/2 | 38 | 165 | 127 | 98 | 73 | 14 | 4-16 | 2 | 229 | 140 | - | - | |
| 2 | 51 | 178 | 152 | 121 | 92 | 16 | 4-19 | 2 | 305 | 159 | - | - | |
| 2-1/2 | 64 | 191 | 178 | 140 | 105 | 17 | 4-19 | 2 | 460 | 191 | - | - | |
| 3 | 76 | 203 | 191 | 152 | 127 | 19 | 4-19 | 2 | 460 | 191 | - | - | |
| 4 | 102 | 229 | 229 | 191 | 157 | 24 | 8-19 | 2 | 762 | 229 | - | - | |
| 6 | 152 | 267 | 279 | 241 | 216 | 25 | 8-22 | 2 | - | 536 | 222 | 305 | |
| 8 | 203 | 292 | 343 | 298 | 270 | 29 | 8-22 | 2 | - | 565 | 400 | 460 | |
| 10 | 254 | 330 | 406 | 362 | 324 | 30 | 12-25 | 2 | - | 616 | 400 | 460 | |
| 300 | 1/2 | 13 | 140 | 95 | 67 | 35 | 14 | 4-16 | 2 | 149 | 121 | - | - |
| 3/4 | 19 | 152 | 117 | 83 | 43 | 16 | 4-19 | 2 | 149 | 121 | - | - | |
| 1 | 25 | 159 | 124 | 89 | 51 | 17 | 4-19 | 2 | 181 | 124 | - | - | |
| 1-1/2 | 38 | 191 | 156 | 114 | 73 | 21 | 4-22 | 2 | 229 | 140 | - | - | |
| 2 | 51 | 216 | 165 | 127 | 92 | 22 | 8-19 | 2 | 305 | 159 | - | - | |
| 2-1/2 | 64 | 241 | 191 | 149 | 105 | 25 | 8-22 | 2 | 460 | 191 | - | - | |
| 3 | 76 | 283 | 210 | 168 | 127 | 29 | 8-22 | 2 | 460 | 191 | - | - | |
| 4 | 102 | 305 | 254 | 200 | 157 | 32 | 8-22 | 2 | 762 | 229 | - | - | |
| 6 | 152 | 403 | 318 | 270 | 216 | 37 | 12-22 | 2 | - | 546 | 222 | 305 | |
| 8 | 203 | 419 | 381 | 300 | 270 | 41 | 12-25 | 2 | - | 565 | 400 | 460 | |
| 10 | 254 | 457 | 445 | 387 | 324 | 48 | 16-29 | 2 | - | 616 | 400 | 460 |
随着经济高速发展,市场竞争越来越激烈,用户对阀门产品的要求也越来越多,并且对服务的要求也越来越高;我司销售部门为适应市场发展的要求,专业设立了服务培训组,为服务质量添加完善的工作,我司的售前、售中、售后服务工作经由专业的销售员来完成。
一、冠环阀门售前服务:
做到技术与销售的良好结合,让用户的每一次采购都有较好的服务体验。
①进行采购前产品技术沟通和交流,主动给予建议。
②在进行产品型号选择时考虑是否成本合理工矿效率等问题。
③不能达到工矿要求时,根据客户的特殊要求,安排设计师合理改善。
二、冠环阀门售中服务:
尊重每位用户;给用户一份省心,放心的整体价值服务。
①进行性价比:比价格,比质量,比服务,反思是否有不做到位的地方。
②严格按相关标准和技术要求进行阀门的检测和试验。
③在合作过程中,依照合同,保质保量准时交货,随时保持与用户联系。
④定制期间,相关技术人员可来我司进行产品监造和检验,同时,我司会提供该产品的结构图及详细文件资料,来做监造文件。
⑤对特殊工矿或定做的产品,可协商专业技术员亲临现场指导。
⑥我公司在发货前以电话进行产品型号、口径、数量、件数的确认。
三、冠环阀门售后服务:
好的服务铸就好的企业让客户无后顾之忧。
①按合同要求提供产品的合格证、检验报告、安装说明书等。
②顾客在验收产品过程中,如出现与合同要求不符时,我司接到顾客通知后两小时内给予处理。
③我司提供十二个月的产品质保期,时间从验收合格之日起计算。
④在正确安装和使用下,出现产品质量问题,本公司将负责到底。
冠环阀门包修包换承诺:
①在正常的储运、安装、保养、使用条件下,因产品的质量问题不能正常使用时,提供三保四包: 保质、保量、保及时、包修、包换、包退、包损失。
②在接到质量信息反馈时,将在24小时内提出处理意见,并做到100小时内赶到现场做处理。
③可根据用户需求协商提供备品、备件和安装、调试、维修服务。
为了让您采购到满意的阀门,减少阀门订购过程出现的问题,也是提高我们工作人员的工作效率。我们希望您提供详尽的订货需求,以便我们为您提高更周到的服务!
阀门订货说明:
1、①产品名称与型号,②公称直径,③阀体材质,④公称压力,⑤使用介质,⑥使用温度,⑦驱动方式,⑧是否带附件,以便我们的为您正确选型。
2、如有特殊要求时请在订购产品时注明。
3、若已经由设计单位选定的型号,请按型号直接向我司销售部订购。
4、当使用的场合非常重要或环境比较复杂时,请您尽量提供设计图。
欢迎您访问我们的网站,如有任何疑问,您可以致电给我们,我们一定会尽心尽力为您提供高品质的服务,详细咨询:15000098987。

我要咨询









021-67895388
shghfmc@163.com
93862333