美标法兰式卡套旋塞阀
产品型号:X41F
公称通径:NPS 1/2"~8"
压力范围:Class150~600Lb
工作温度:-29-180℃
主体材质:铸钢、碳钢、不锈钢
驱动方式:手柄、蜗轮蜗杆传动
设计标准:API599、API6D
结构长度:ASME B16.10
连接法兰:ASME B16.5
试验和检验:API598、API6D
产品用途
美标法兰式卡套旋塞阀适用于公称压力CLASS150-600LB,工作温度为-29-180℃的石油、化工、制药、化肥、电力行业等各种工况的管路上,切断或接通管路介质。
主要结构特点
1、产品结构合理、密封可靠、性能优良、造型美观。
2、它的密封性是通过卡套四周的密封面来实现的。360°金属唇边保护固定卡套。
3、阀门没有空腔给介质积聚。
4、金属唇边在旋塞转时提供自洁的作用,适合于粘稠和易结垢的工况。
5、双向流动,使用安装更方便。
6、零件材质及法兰尺寸可根据实际工况或用户要求合理选配,满足各种工程需要。
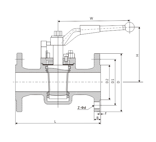
主要连接尺寸
| 压力级(Lb) | 公称通径DN | 尺寸(mm) | ||||||||
| (ln) | (mm) | D | D1 | D2 | L | H | do | b-f | z-Φd | |
| 150Lb | 1/2 | 15 | 89 | 60.5 | 35 | 108 | 110 | 150 | 12-2 | 4-Φ15 |
| 3/4 | 20 | 98 | 70 | 43 | 117 | 115 | 150 | 12-2 | 4-Φ15 | |
| 1 | 25 | 108 | 79.5 | 51 | 127 | 115 | 180 | 12-2 | 4-Φ15 | |
| 1-1/4 | 32 | 117 | 89 | 64 | 140 | 135 | 270 | 13-2 | 4-Φ15 | |
| 1-1/2 | 40 | 127 | 98.5 | 73 | 165 | 140 | 280 | 15-2 | 4-Φ15 | |
| 2 | 50 | 152 | 120.5 | 92 | 178 | 150 | 300 | 16-2 | 4-Φ19 | |
| 2-1/2 | 65 | 178 | 139.5 | 105 | 190 | 165 | 350 | 18-2 | 4-Φ19 | |
| 3 | 80 | 190 | 152.5 | 127 | 203 | 180 | 400 | 19-2 | 4-Φ19 | |
| 4 | 100 | 229 | 190.5 | 157 | 229 | 380 | - | 24-2 | 4-Φ19 | |
| 5 | 125 | 254 | 216 | 186 | 254 | 460 | - | 25-2 | 8-Φ22 | |
| 6 | 150 | 279 | 241.5 | 216 | 267 | 520 | - | 27-2 | 8-Φ22 | |
| 8 | 200 | 343 | 298.5 | 270 | 292 | 580 | - | 30-2 | 8-Φ22 | |
随着经济高速发展,市场竞争越来越激烈,用户对阀门产品的要求也越来越多,并且对服务的要求也越来越高;我司销售部门为适应市场发展的要求,专业设立了服务培训组,为服务质量添加完善的工作,我司的售前、售中、售后服务工作经由专业的销售员来完成。
一、冠环阀门售前服务:
做到技术与销售的良好结合,让用户的每一次采购都有较好的服务体验。
①进行采购前产品技术沟通和交流,主动给予建议。
②在进行产品型号选择时考虑是否成本合理工矿效率等问题。
③不能达到工矿要求时,根据客户的特殊要求,安排设计师合理改善。
二、冠环阀门售中服务:
尊重每位用户;给用户一份省心,放心的整体价值服务。
①进行性价比:比价格,比质量,比服务,反思是否有不做到位的地方。
②严格按相关标准和技术要求进行阀门的检测和试验。
③在合作过程中,依照合同,保质保量准时交货,随时保持与用户联系。
④定制期间,相关技术人员可来我司进行产品监造和检验,同时,我司会提供该产品的结构图及详细文件资料,来做监造文件。
⑤对特殊工矿或定做的产品,可协商专业技术员亲临现场指导。
⑥我公司在发货前以电话进行产品型号、口径、数量、件数的确认。
三、冠环阀门售后服务:
好的服务铸就好的企业让客户无后顾之忧。
①按合同要求提供产品的合格证、检验报告、安装说明书等。
②顾客在验收产品过程中,如出现与合同要求不符时,我司接到顾客通知后两小时内给予处理。
③我司提供十二个月的产品质保期,时间从验收合格之日起计算。
④在正确安装和使用下,出现产品质量问题,本公司将负责到底。
冠环阀门包修包换承诺:
①在正常的储运、安装、保养、使用条件下,因产品的质量问题不能正常使用时,提供三保四包: 保质、保量、保及时、包修、包换、包退、包损失。
②在接到质量信息反馈时,将在24小时内提出处理意见,并做到100小时内赶到现场做处理。
③可根据用户需求协商提供备品、备件和安装、调试、维修服务。
为了让您采购到满意的阀门,减少阀门订购过程出现的问题,也是提高我们工作人员的工作效率。我们希望您提供详尽的订货需求,以便我们为您提高更周到的服务!
阀门订货说明:
1、①产品名称与型号,②公称直径,③阀体材质,④公称压力,⑤使用介质,⑥使用温度,⑦驱动方式,⑧是否带附件,以便我们的为您正确选型。
2、如有特殊要求时请在订购产品时注明。
3、若已经由设计单位选定的型号,请按型号直接向我司销售部订购。
4、当使用的场合非常重要或环境比较复杂时,请您尽量提供设计图。
欢迎您访问我们的网站,如有任何疑问,您可以致电给我们,我们一定会尽心尽力为您提供高品质的服务,详细咨询:15000098987。

我要咨询









021-67895388
shghfmc@163.com
93862333