电动衬氟球阀
产品型号:Q941F46
公称通径:DN15~300mm
压力范围:PN1.0~2.5MPa
使用温度:-29℃~120℃
适用介质:硫酸、浓酸、王水、碱
连接方式:法兰式连接
阀体材质:铸钢WCB
驱动方式:电动、调节型、开关型
产品概述
电动衬氟球阀在现代化防腐工业中有着不可忽略的位置,是由智能型电动执行器和衬氟球阀组合而成,球阀的结构上分为(浮动式、固定式)。阀体内腔及球芯均采用高压注塑工艺衬有耐腐蚀、耐老化的聚全氟乙炳烯,故具有可靠的耐腐蚀性和密封性。具有结构紧凑、尺寸小、重量轻、阻力小、动作稳定可靠等优点。 特别适用于有机酸、硫酸、浓酸、王水、碱以及一些腐蚀性液体介质的管道上。以(220V、380V)电源为驱动接受(4~20mA)工业仪表信号,推动阀杆带动球心旋转来完成球阀的开关和调节。
产品特点
1、衬氟球阀阀体内腔和球心以及所有与介质接触部位均采用全衬3mm厚度的四氟材料,具有良好耐酸碱以及抗腐蚀的特性。
2、可根据现场使用情况来合理性的选择执行配置,如智能调节型、智能开关型以及带有自动复位的执行器远程控制以及防爆功能等。
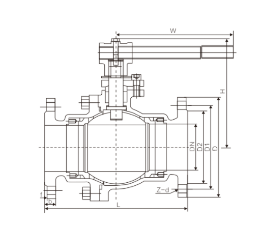
主要连接尺寸
| 公称通径 | 标准值 | 参考值 | ||||||||
| DN(mm) | NPS(inch) | L | D | D1 | D2 | f | b | n-Φd | W | H |
| PN1.6(MPa) | ||||||||||
| 15 | 1/2 | 140/130 | 95 | 65 | 45 | 2 | 14 | 4-Φ14 | 231 | 350 |
| 20 | 3/4 | 140/130 | 105 | 75 | 55 | 2 | 16 | 4-Φ14 | 231 | 370 |
| 25 | 1 | 150/1340 | 115 | 85 | 65 | 2 | 16 | 4-Φ14 | 231 | 375 |
| 32 | 1-1/4 | 165 | 135 | 100 | 78 | 2 | 18 | 4-Φ18 | 231 | 385 |
| 40 | 1-1/2 | 180/165 | 145 | 110 | 85 | 3 | 18 | 4-Φ18 | 231 | 390 |
| 50 | 2 | 200/203 | 160 | 125 | 100 | 3 | 20 | 4-Φ18 | 231 | 435 |
| 65 | 2-1/2 | 220/222 | 180 | 145 | 120 | 3 | 20 | 4-Φ18 | 261 | 460 |
| 80 | 3 | 250/241 | 195 | 160 | 135 | 3 | 22 | 4-Φ18 | 261 | 465 |
| 100 | 4 | 280/305 | 215 | 180 | 155 | 3 | 24 | 8-Φ18 | 285 | 612 |
| 125 | 5 | 320/356 | 245 | 210 | 185 | 3 | 26 | 8-Φ18 | 285 | 625 |
| 150 | 6 | 360/394 | 280 | 240 | 210 | 3 | 28 | 8-Φ23 | 325 | 700 |
| 200 | 8 | 457 | 335 | 295 | 265 | 3 | 30 | 8-Φ23 | 325 | 740 |
随着经济高速发展,市场竞争越来越激烈,用户对阀门产品的要求也越来越多,并且对服务的要求也越来越高;我司销售部门为适应市场发展的要求,专业设立了服务培训组,为服务质量添加完善的工作,我司的售前、售中、售后服务工作经由专业的销售员来完成。
一、冠环阀门售前服务:
做到技术与销售的良好结合,让用户的每一次采购都有较好的服务体验。
①进行采购前产品技术沟通和交流,主动给予建议。
②在进行产品型号选择时考虑是否成本合理工矿效率等问题。
③不能达到工矿要求时,根据客户的特殊要求,安排设计师合理改善。
二、冠环阀门售中服务:
尊重每位用户;给用户一份省心,放心的整体价值服务。
①进行性价比:比价格,比质量,比服务,反思是否有不做到位的地方。
②严格按相关标准和技术要求进行阀门的检测和试验。
③在合作过程中,依照合同,保质保量准时交货,随时保持与用户联系。
④定制期间,相关技术人员可来我司进行产品监造和检验,同时,我司会提供该产品的结构图及详细文件资料,来做监造文件。
⑤对特殊工矿或定做的产品,可协商专业技术员亲临现场指导。
⑥我公司在发货前以电话进行产品型号、口径、数量、件数的确认。
三、冠环阀门售后服务:
好的服务铸就好的企业让客户无后顾之忧。
①按合同要求提供产品的合格证、检验报告、安装说明书等。
②顾客在验收产品过程中,如出现与合同要求不符时,我司接到顾客通知后两小时内给予处理。
③我司提供十二个月的产品质保期,时间从验收合格之日起计算。
④在正确安装和使用下,出现产品质量问题,本公司将负责到底。
冠环阀门包修包换承诺:
①在正常的储运、安装、保养、使用条件下,因产品的质量问题不能正常使用时,提供三保四包: 保质、保量、保及时、包修、包换、包退、包损失。
②在接到质量信息反馈时,将在24小时内提出处理意见,并做到100小时内赶到现场做处理。
③可根据用户需求协商提供备品、备件和安装、调试、维修服务。
为了让您采购到满意的阀门,减少阀门订购过程出现的问题,也是提高我们工作人员的工作效率。我们希望您提供详尽的订货需求,以便我们为您提高更周到的服务!
阀门订货说明:
1、①产品名称与型号,②公称直径,③阀体材质,④公称压力,⑤使用介质,⑥使用温度,⑦驱动方式,⑧是否带附件,以便我们的为您正确选型。
2、如有特殊要求时请在订购产品时注明。
3、若已经由设计单位选定的型号,请按型号直接向我司销售部订购。
4、当使用的场合非常重要或环境比较复杂时,请您尽量提供设计图。
欢迎您访问我们的网站,如有任何疑问,您可以致电给我们,我们一定会尽心尽力为您提供高品质的服务,详细咨询:15000098987。

我要咨询























021-67895388
shghfmc@163.com
93862333