衬氟球阀(气动)
产品型号:Q41F46/Q341F46
公称通径:DN50~DN600mm
公称压力:PN1.0 MPa ~1.6MPa
适用温度:-29℃~150℃
设计制造:GB/T12237-1989
法兰尺寸:GB/T9112~9131
结构长度:GB/T12221-1989
检验试验:JB/T 9092、API 598
适用介质:浓酸、硫酸、王水
衬氟球阀是用带圆形通孔的球体作启闭件,球体随阀杆绕阀体中心线旋转以实现阀门开启和关闭。采用特殊的模压工艺,使密封面致密良好,加之V型PTFE填料组合使阀门达到零泄漏;球体与阀杆铸为一体,杜绝了由于压力变化引起阀杆冲出承压件内的可能性,根本保证使用中的安全性;采用氟塑料衬里层的球阀,具有极高的化学稳定性。适用于任何强腐蚀性化学介质;采用全通浮动球阀结构,在整个压力范围内进行元泄漏关闭,便便于管路系统在通球扫线和管路维护。衬氟球阀为控制各种强腐蚀性介质的启闭而进行的专业设计,广泛使用于石油、化工、染化、农药、制酸制碱等行业,是目前防腐阀门理想的选择。
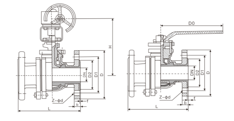
主要外形连接尺寸(PN10)
|
DN(mm) |
NPS(inch) |
L |
D |
D1 |
D2 |
f |
b |
Z- φd |
D0 |
H |
WT(kg) |
| 15 | 1/ 2 | 140 | 95 | 65 | 45 | 2 | 14 | 4-14 | 120 | 80 | 3 |
| 20 | 3 /4 | 140 | 105 | 75 | 55 | 2 | 16 | 4-14 | 140 | 90 | 3.9 |
| 25 | 1 | 150 | 115 | 85 | 65 | 2 | 16 | 4-14 | 160 | 100 | 4.5 |
| 32 | 1-1 /4 | 165 | 135 | 100 | 78 | 2 | 18 | 4-18 | 160 | 110 | 6.5 |
| 40 | 1-1/2 | 180 | 145 | 110 | 85 | 3 | 18 | 4-18 | 200 | 120 | 8 |
| 50 | 2 | 200 | 160 | 125 | 100 | 3 | 20 | 4-18 | 250 | 135 | 11 |
| 65 | 2-1 /2 | 220 | 180 | 145 | 120 | 3 | 20 | 4-18 | 300 | 145 | 15.5 |
| 80 | 3 | 250 | 195 | 160 | 135 | 3 | 22 | 4/8-18 | 350 | 180 | 19 |
| 100 | 4 | 280 | 215 | 180 | 155 | 3 | 22 | 8-18 | 240 | 195 | 26 |
| 125 | 5 | 320 | 245 | 210 | 185 | 3 | 24 | 8-18 | 500 | 210 | 44 |
| 150 | 6 | 360 | 280 | 240 | 210 | 3 | 24 | 8-23 | 200* | 450 | 70 |
| 200 | 8 | 457 | 335 | 295 | 265 | 3 | 26 | 8-23 | 240* | 490 | 110 |
| 250 | 10 | 533 | 390 | 350 | 320 | 3 | 28 | 12-23 | 240* | 550 | 220 |
| 300 | 12 | 610 | 440 | 400 | 368 | 4 | 28 | 12-23 | 320* | 600 | 280 |
| 350 | 14 | 686 | 500 | 460 | 428 | 4 | 30 | 16-23 | 320* | 675 | 410 |
随着经济高速发展,市场竞争越来越激烈,用户对阀门产品的要求也越来越多,并且对服务的要求也越来越高;我司销售部门为适应市场发展的要求,专业设立了服务培训组,为服务质量添加完善的工作,我司的售前、售中、售后服务工作经由专业的销售员来完成。
一、冠环阀门售前服务:
做到技术与销售的良好结合,让用户的每一次采购都有较好的服务体验。
①进行采购前产品技术沟通和交流,主动给予建议。
②在进行产品型号选择时考虑是否成本合理工矿效率等问题。
③不能达到工矿要求时,根据客户的特殊要求,安排设计师合理改善。
二、冠环阀门售中服务:
尊重每位用户;给用户一份省心,放心的整体价值服务。
①进行性价比:比价格,比质量,比服务,反思是否有不做到位的地方。
②严格按相关标准和技术要求进行阀门的检测和试验。
③在合作过程中,依照合同,保质保量准时交货,随时保持与用户联系。
④定制期间,相关技术人员可来我司进行产品监造和检验,同时,我司会提供该产品的结构图及详细文件资料,来做监造文件。
⑤对特殊工矿或定做的产品,可协商专业技术员亲临现场指导。
⑥我公司在发货前以电话进行产品型号、口径、数量、件数的确认。
三、冠环阀门售后服务:
好的服务铸就好的企业让客户无后顾之忧。
①按合同要求提供产品的合格证、检验报告、安装说明书等。
②顾客在验收产品过程中,如出现与合同要求不符时,我司接到顾客通知后两小时内给予处理。
③我司提供十二个月的产品质保期,时间从验收合格之日起计算。
④在正确安装和使用下,出现产品质量问题,本公司将负责到底。
冠环阀门包修包换承诺:
①在正常的储运、安装、保养、使用条件下,因产品的质量问题不能正常使用时,提供三保四包: 保质、保量、保及时、包修、包换、包退、包损失。
②在接到质量信息反馈时,将在24小时内提出处理意见,并做到100小时内赶到现场做处理。
③可根据用户需求协商提供备品、备件和安装、调试、维修服务。
为了让您采购到满意的阀门,减少阀门订购过程出现的问题,也是提高我们工作人员的工作效率。我们希望您提供详尽的订货需求,以便我们为您提高更周到的服务!
阀门订货说明:
1、①产品名称与型号,②公称直径,③阀体材质,④公称压力,⑤使用介质,⑥使用温度,⑦驱动方式,⑧是否带附件,以便我们的为您正确选型。
2、如有特殊要求时请在订购产品时注明。
3、若已经由设计单位选定的型号,请按型号直接向我司销售部订购。
4、当使用的场合非常重要或环境比较复杂时,请您尽量提供设计图。
欢迎您访问我们的网站,如有任何疑问,您可以致电给我们,我们一定会尽心尽力为您提供高品质的服务,详细咨询:15000098987。

我要咨询


















021-67895388
shghfmc@163.com
93862333