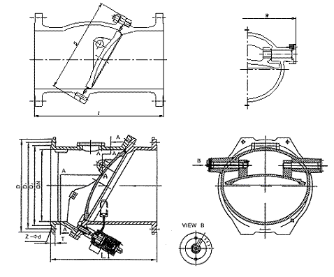
斜盘式止回阀
公称通径:NPS2~NPS24
压力等级:CL150~CL2500
连接方式:RF, RTJ, BW
主体材质:碳钢、合金钢、不锈钢、双相钢、镍基合金等
适用介质:水、蒸汽、油品、腐蚀性介质等
设计标准:ASME B16.34,BS1868, API6D
结构长度:ASME B16.10
法兰尺寸:ASME B16.5 GB HG SH
检验和试验:API 598
产品概述
斜盘式止回阀采用双偏心阀瓣,关闭时阀痤与密封面逐步接触,达到无撞击、无噪声工作。斜盘式结构使流体通道呈流线型,流阻小,有节能效果。蝶式阀瓣设计,开关迅速、灵敏,使用寿命长。
结构特点
1、双偏心阀瓣,关闭时阀痤与密封面逐步接触,达到无撞击、无噪声工作。
2、微弹性金属阀座,密封性能好。
3、蝶式阀瓣设计,开关迅速、灵敏,使用寿命长。
4、斜盘式结构使流体通道呈流线型,流阻小,有节能效果。
Class 150 主要尺寸
| 公称通径 | NPS | 2 | 2 | 3 | 4 | 6 | 8 | 10 | 12 | 14 | 16 | 18 | 20 | 24 | 26 | 28 | 30 | 32 |
| DN | 50 | 65 | 80 | 100 | 150 | 200 | 250 | 300 | 350 | 400 | 450 | 500 | 600 | 650 | 700 | 750 | 800 | |
| L | 203 | 216 | 241 | 292 | 356 | 495 | 622 | 698 | 787 | 864 | 978 | 978 | 1295 | 1295 | 1143 | 1143 | 1194 | |
| D | 160 | 182 | 196 | 230 | 300 | 390 | 432 | 510 | 540 | 635 | 700 | 770 | 900 | 930 | 991 | 1020 | 1150 | |
| W | 178 | 198 | 224 | 252 | 326 | 426 | 456 | 530 | 576 | 670 | 740 | 818 | 948 | 988 | 1050 | 1090 | 1240 | |
| 重量 (kg) | 11 | 16 | 22 | 34 | 62 | 112 | 169 | 238 | 337 | 420 | 550 | 685 | 910 | 1055 | 1260 | 1540 | 1860 | |
Class 300 主要尺寸
|
公称通径 |
NPS | 2 | 2 | 3 | 4 | 6 | 8 | 10 | 12 | 14 | 16 | 18 | 20 | 24 | 26 | 28 | 30 | 32 |
| DN | 50 | 65 | 80 | 100 | 150 | 200 | 250 | 300 | 350 | 400 | 450 | 500 | 600 | 650 | 700 | 750 | 800 | |
| L | 267 | 292 | 318 | 356 | 444 | 533 | 622 | 711 | 838 | 864 | 978 | 1016 | 1346 | 1346 | 1295 | 1372 | 1448 | |
| D | 170 | 196 | 214 | 245 | 320 | 400 | 460 | 540 | 580 | 660 | 725 | 800 | 940 | 970 | 1040 | 1080 | 1210 | |
| W | 198 | 220 | 232 | 268 | 360 | 426 | 457 | 572 | 620 | 690 | 760 | 848 | 988 | 1018 | 1250 | 1280 | 1350 | |
| 重量 (kg) | 17 | 22 | 32 | 97 | 110 | 162 | 228 | 380 | 443 | 530 | 780 | 980 | 1320 | 1364 | 1762 | 2050 | 2870 | |
Class 600 主要尺寸
| 公称通径 | NPS | 2 | 2 | 3 | 4 | 6 | 8 | 10 | 12 | 14 | 16 | 18 | 20 | 24 |
| DN | 50 | 65 | 80 | 100 | 150 | 200 | 250 | 300 | 350 | 400 | 450 | 500 | 600 | |
| L | 292 | 330 | 356 | 432 | 559 | 660 | 787 | 838 | 889 | 991 | 1092 | 1194 | 1397 | |
| D | 185 | 196 | 210 | 270 | 340 | 440 | 520 | 570 | 610 | 690 | 755 | 850 | 990 | |
| W | 212 | 225 | 240 | 298 | 405 | 460 | 492 | 602 | 650 | 710 | 780 | 902 | 1040 | |
| 重量 (kg) | 27 | 44 | 47 | 115 | 190 | 320 | 430 | 586 | 750 | 1015 | 1480 | 2050 | 2550 | |
随着经济高速发展,市场竞争越来越激烈,用户对阀门产品的要求也越来越多,并且对服务的要求也越来越高;我司销售部门为适应市场发展的要求,专业设立了服务培训组,为服务质量添加完善的工作,我司的售前、售中、售后服务工作经由专业的销售员来完成。
一、冠环阀门售前服务:
做到技术与销售的良好结合,让用户的每一次采购都有较好的服务体验。
①进行采购前产品技术沟通和交流,主动给予建议。
②在进行产品型号选择时考虑是否成本合理工矿效率等问题。
③不能达到工矿要求时,根据客户的特殊要求,安排设计师合理改善。
二、冠环阀门售中服务:
尊重每位用户;给用户一份省心,放心的整体价值服务。
①进行性价比:比价格,比质量,比服务,反思是否有不做到位的地方。
②严格按相关标准和技术要求进行阀门的检测和试验。
③在合作过程中,依照合同,保质保量准时交货,随时保持与用户联系。
④定制期间,相关技术人员可来我司进行产品监造和检验,同时,我司会提供该产品的结构图及详细文件资料,来做监造文件。
⑤对特殊工矿或定做的产品,可协商专业技术员亲临现场指导。
⑥我公司在发货前以电话进行产品型号、口径、数量、件数的确认。
三、冠环阀门售后服务:
好的服务铸就好的企业让客户无后顾之忧。
①按合同要求提供产品的合格证、检验报告、安装说明书等。
②顾客在验收产品过程中,如出现与合同要求不符时,我司接到顾客通知后两小时内给予处理。
③我司提供十二个月的产品质保期,时间从验收合格之日起计算。
④在正确安装和使用下,出现产品质量问题,本公司将负责到底。
冠环阀门包修包换承诺:
①在正常的储运、安装、保养、使用条件下,因产品的质量问题不能正常使用时,提供三保四包: 保质、保量、保及时、包修、包换、包退、包损失。
②在接到质量信息反馈时,将在24小时内提出处理意见,并做到100小时内赶到现场做处理。
③可根据用户需求协商提供备品、备件和安装、调试、维修服务。
为了让您采购到满意的阀门,减少阀门订购过程出现的问题,也是提高我们工作人员的工作效率。我们希望您提供详尽的订货需求,以便我们为您提高更周到的服务!
阀门订货说明:
1、①产品名称与型号,②公称直径,③阀体材质,④公称压力,⑤使用介质,⑥使用温度,⑦驱动方式,⑧是否带附件,以便我们的为您正确选型。
2、如有特殊要求时请在订购产品时注明。
3、若已经由设计单位选定的型号,请按型号直接向我司销售部订购。
4、当使用的场合非常重要或环境比较复杂时,请您尽量提供设计图。
欢迎您访问我们的网站,如有任何疑问,您可以致电给我们,我们一定会尽心尽力为您提供高品质的服务,详细咨询:15000098987。

我要咨询














021-67895388
shghfmc@163.com
93862333